270 m2
							
							Caratteristiche principali
							
								
													Codice / riferimento
		RIF B999
	  
								 
							 
							Altre caratteristiche e accessori
							
							
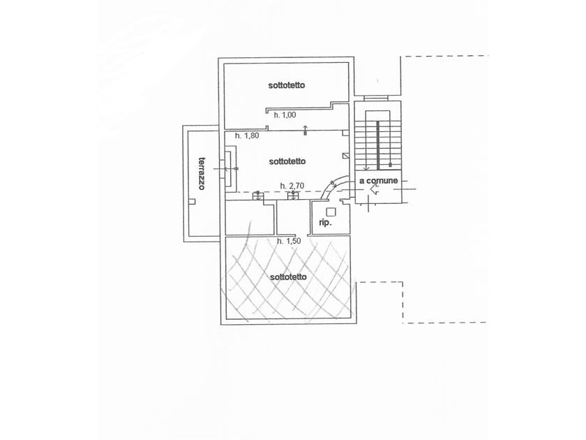
							Nel centro di Lamporecchio in posizione centralissima, bell'appartamento disposto al primo piano più soffitta mansardata, in edificio di poche unità immobiliari. L'appartamento presenta spazi distribuiti in maniera coerente, con una perfetta divisione giorno-notte; si tratta di un'occasione unica per chi non vuole dipendere da auto o bici ed essere al centro di ogni comodità. Molto luminoso ed accogliente si compone di: ingresso, ampia zona living con angolo cottura e caminetto oltre due porte-finestre che aprono su un grande terrazzo abitabile, soggiorno con accesso a veranda, disimpegno notte, tre camere di cui una con accesso diretto alla veranda e due bagni entrambi finestrati, uno con doccia e uno con vasca. Al piano sottotetto-soffitta, con accesso dalla scala condominiale, troviamo alcuni vani attualmente usati dai proprietari come mansarda oltre a due terrazzi a tasca ed altri spazi adibiti a soffitta. Di proprietà anche una cantina/garage al piano seminterrato e due corti esclusive di circa mq. 100 ciascuna, sul retro del palazzo, raggiungibili dal piazzale condominiale. Sempre all'interno del piazzale condominiale troviamo dei posti auto scoperti ad uso esclusivo. Per motivi di privacy l'indirizzo in pubblicità non corrisponde a quello reale, per ulteriori informazioni chiamare l'agenzia immobiliare e chiedere del RIF B/999. 
							        Via Gramsci , Lamporecchio (PT)